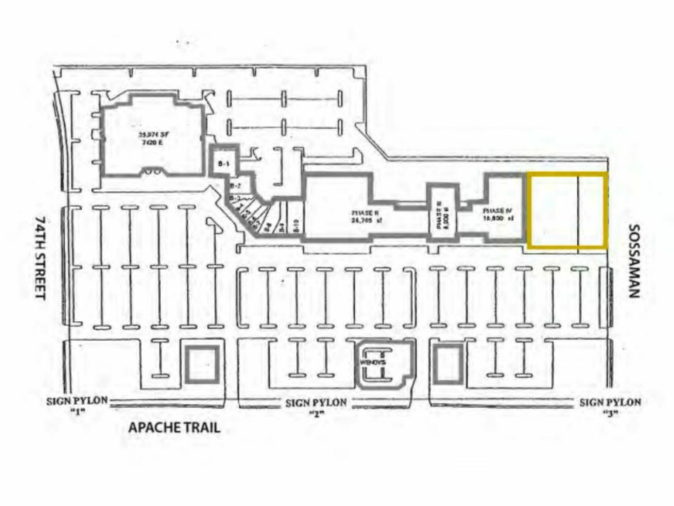
Sun Valley Plaza Pad
NWC of Main St and Sossaman
Mesa, AZ 85207
Highlights
- Lot can support up to a 22,750 square foot building
- 2 Miles from Loop-202 & US-60
- 27,513 VPD on Main St and Sossaman Rd
- High visibility on the corner of Main and Sossaman
- Population over 106,000 and Average HH Income over $87,000 within 3
- miles
Description
This property is located in a well-positioned neighborhood shopping center located at 7440 E Main Street in Mesa, AZ. Situated near the intersection of Main Street and Sossaman Road, the property benefits from strong daily traffic and easy access to U.S. 60 and Loop 202. The surrounding area features dense residential neighborhoods, schools, and growing commercial development, creating a steady customer base. With excellent visibility, ample parking, and a mix of local and national tenants, Sun Valley Plaza is an ideal location for retail and service-oriented businesses.
Located in a well-positioned neighborhood shopping center located at 7440 E Main Street in Mesa, AZ. Situated near the intersection of Main Street and Sossaman Road, the property benefits from strong daily traffic and easy access to U.S. 60 and Loop 202. The surrounding area features dense residential neighborhoods, schools, and growing commercial development, creating a steady customer base.

