Refugee Industrial Park
2200 Lockbourne Road
Columbus, OH 43207
Highlights
- Exterior Storage Land Available
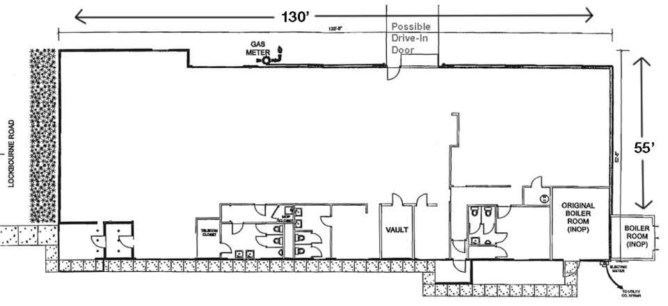
- Drive In Door can be Easily Added
- Possible Use to be Brewery, Tasting Room or Event Space
- Original Vault Area and Exposed Art Deco Brick
- Office/Warehouse with Retail Presence
- 13 Foot Ceiling Beams
- 225 Amps at 240 3-Phase Electric and 2-Inch Water Main
- Great Signage Opportunities and Ample Parking
- Easy Access to SR 104, SR 23, and I-71
Description
2200 Lockbourne Road is a 7,037-square-foot industrial space available for lease, offering the added advantage of exterior storage land. Additionally, the inclusion of a drive-in door can be easily facilitated. This versatile space holds potential for various uses such as a brewery, tasting room, or event space, combining office and warehouse areas with a retail presence and high street exposure. Infrastructure features include a 2-inch water main and 225 amps at 240 3-phase electric supply. The property provides excellent signage opportunities and has convenient location with easy access to SR 104, SR 23, and I-71.
Conveniently located at the intersection of Lockbourne Road and Refugee Road just 2 minutes from SR 104, 4 minutes from SR 23, and only 5 minutes from I-71.
Documents
2200 Lockbourne Rd- Lease FlyerUnits for Lease
Price Per Sqft/Year: $11.50

