Redevelopment Opportunity | Large 6-Units With Plans
2222 W 21st St
Chicago, IL 60608
Highlights
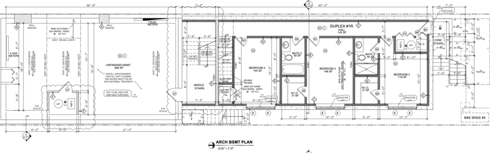
- Approved Plans for 6 Units
- 3 Car Parking
- Generous-Sized Floor Plans
- B2-3 Zoning
- Majority of Building Framed Out & Ready for Completion
- New Construction in Rear Half of Building
- Steps to CTA Pink Line
Description
Introducing a rare redevelopment opportunity located at 2222 W 21st Street. This expansive brick building, features a newly constructed rear addition, has undergone significant structural upgrades, including full interior gutting, reinforcement, and the initial framing of approved plans. Approved architectural plans have been secured and approved by the City of Chicago.
Once completed, the property will consist of six expansive units: a spacious 4-bedroom, 3-bathroom duplex ideal for an owner-occupant or premium rental, two 2-bedroom, 1-bathroom units, and three 1-bedroom, 1-bathroom units. Unit sizes range from approximately 850 to 2,200 square feet, offering a mix of layouts to attract a wide range of tenants.
Situated in Chicago's Pilsen neighborhood, 2222 W 21st Street offers a prime location that blends accessibility with vibrant city living. Just a short walk from the CTA Pink Line at Damen/Hoyne, residents enjoy swift connections to downtown Chicago and the Illinois Medical District, making daily commutes effortless. For drivers, the property's proximity to major expressways like I-55 and I-290 ensures convenient travel throughout the city.
The area boasts a Walk Score of 87, reflecting its pedestrian-friendly nature. Within a 10-minute walk, residents can access shopping centers such as Costco, Cermak Plaza, Fairplay Foods Center, Alsi, and award-winning restaurants. The neighborhood is also home to cultural landmarks like Thalia Hall and Radius Chicago Music Venue, offering a vibrant arts and entertainment scene. Additionally, nearby parks provide green spaces for relaxation and recreation.
With its strategic location near key amenities and transit options, 2222 W 21st Street presents an exceptional opportunity for those seeking a dynamic urban lifestyle in one of Chicago's most vibrant neighborhoods.
