PROFESSIONAL OFFICE SPACE EAST BATTLEFIELD
3271 E Battlefield Rd
Springfield, MO 65804
Highlights
- BUILDING SIZE: 66,686 SF
- AVAILABILITY: 5,757 SF or 9,675 SF
- LEASE RATE: $15.00/SF (NNN) – $18.00/ SF (NNN)
- SPACE TYPE: Office
- PARKING: Shared parking with garage
- SIGNAGE: Available
Description
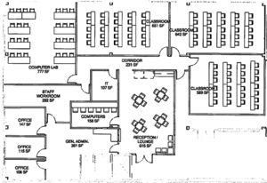
Thank you for viewing this property at 3271 E Battlefield Road in Springfield, MO. This property has Class A features as a prestigious office space. The building has ample parking that is shared with a garage. It is a three-story building with other professional spaces being utilized inside. The offering has two spaces available: Suite 250 is on the second floor with 5,757 SF available for lease at $15.00/SF NNN. The previous infill was a classroom setup with offices and larger classes or training rooms with large windows. Suite 300 is on the third floor with 9,672 SF at $18.00/SF NNN with several private offices, conference room and open work space.
This property is located on East Battlefield just off US Highway 65. It boasts easy access around Southeast Springfield and visibility on Battlefield Road. The location is highly trafficked, which provides great exposure as the building's frontage is along Battlefield. Neighboring businesses include Metropolitan Grill, Steak 'N Shake, Luna Modern Mexican, Senor Julian, Cavender's PFI, PriceCutter and many other national and local businesses.
Lee McLean III, SIOR, CCIM serves as a Senior Advisor for SVN Commercial in the Springfield Missouri metro area. Lee holds the SIOR & CCIM designation, a Brokers-Associate real estate license and ranks in the top 3% of SVN International.
Documents
PROFESSIONAL OFFICE SPACE EAST BATTLEFIELDUnits for Lease
Price Per Sqft/Year: $15.00
Price Per Sqft/Year: $18.00

