Pre-Leasing for Summer 2026 - ±11,250 SF Warehouse for Lease
616 NW 124th St
Oklahoma City, OK 73114
Highlights
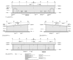
- ±11,250 SF (75’ W x 150’ D)
- Steel construction by Mueller, Inc.
- Grade-level overhead doors (drive-in)
- Easy access to Kilpatrick Turnpike, Hefner Parkway, I-235 and I-44
Description
Be the first to lease this brand new ±11,250 SF warehouse located just south of the Kilpatrick Turnpike in northwest Oklahoma City. Designed for flexibility and functionality, this building offers 75’ x 150’ of clear-span space ideal for industrial, storage, or light manufacturing uses.
Currently under development, this warehouse presents a rare opportunity to secure space in a growing industrial corridor with convenient access to major highways and central OKC.
Located near Chisolm Creek, this location offers convenient access to major transportation routes, I-235 and the Kilpatrick Turnpike. The nearby thriving business community is complemented by a range of dining options, shopping centers, and hotels, ensuring all the amenities your industrial or warehousing tenants may need are close at hand.
Documents
616 NW 124th Street - BrochureUnits for Lease
Price Per Sqft/Year: $12.00

