Ocala West Shopping Center
2400 SW College Rd
Ocala, FL 34471
Highlights
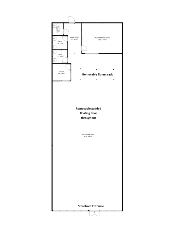
- Retail storefront available FOR LEASE
- Prime retail location surrounded by national retailers and restaurants
- On SW College Road / SR 200 with 35,000 cars/day
- Join Hobby Lobby, Sky Zone and other popular businesses
- NNN $5/sf/yr, Zoned B4
Description
For Lease: Prime Retail Space on SW College road in Ocala Florida. Ocala West is a distinguished 114,902 SF retail center prominently located in Ocala's premier retail corridor. This center is anchored by a high-traffic Hobby Lobby, the top performer in Florida, contributing to over 1.06 million annual visitors. The site has recently undergone significant renovations, including a facade upgrade and new tenant signage, enhancing its appeal and visibility.
Key features include:
- Strong tenant history with over 60% of shop space tenants in place for over 10 years.
- Proximity to major retail destinations like Paddock Mall and Gaitway Plaza, along with a dense surrounding market that includes medical facilities and educational institutions.
- Excellent accessibility, situated less than 2 miles from Interstate 75 and featuring a signalized primary entrance.
- Competitive rental terms with below-market rates and low retail vacancy in the immediate area.
- NNN charges for 2025 = $5.00/sf/yr
Ideal for retailers seeking high visibility and traffic in a thriving and well-established shopping destination.
Ocala West, a prominent retail center in Ocala, Florida, is strategically positioned in the city's prime retail corridor. It is in close proximity to key destinations such as Paddock Mall, Gaitway Plaza, Market Street at Health Brook, and several major retailers like Walmart and Home Depot. The center benefits from easy access to Interstate 75 and is surrounded by a dense market that includes medical facilities and the College of Central Florida. This location, coupled with its robust visitor traffic and a strong mix of long-standing tenants, makes it a vital part of Ocala's retail landscape.
Documents
Lease BrochureUnits for Lease
Price Per Sqft/Year: $25.00
Price Per Sqft/Year: $7.00

