North Regency Square
900 E County Line Road
Ridgeland, MS 39157
FOR LEASE
Property Type:
Neighborhood CenterAmount:
Please Call Broker for PriceLast Verified:
Jan 25, 2026Daily Email Blast
0 times
Highlights
- Efficient mixed-use center with established national tenants
- Exceptional visibility and various signage options for all tenants
- Vibrant retail and office mix creating high-end feel
- Ample parking and convenient access to major roadways
- Prominent location centers in premier retail market area
Description
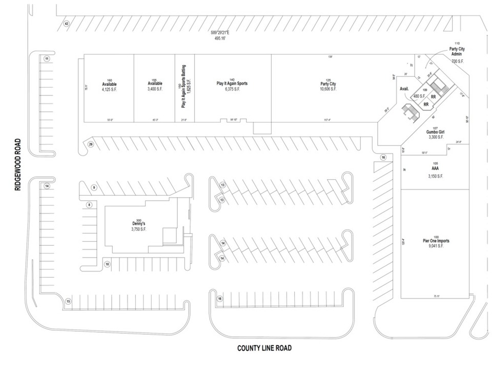
Contemporary architecture highlights this well designed, efficient, mixed-use property offering a variety of choices for retailers and office professionals. The 63,316 center features an assortment of layouts ranging from traditional merchandise retail to convenient access service retail and conventional interior office space. Tenants and customers alike appreciate the ample parking and easy access along the state’s busiest retail corridor. This high traffic location affords excellent visibility through an assortment of signage options.
County Line Road at Ridgewood Road
Year Built: 1987
Building Size: 63316sq ft
Lot Size: 4.03 acres
Units for Lease
Suite 105
Space Available: 3150 SF
Lease Type: NNN
Price Per Sqft/Year: $16.00
Suite 155
Space Available: 3400 SF
Lease Type: NNN
Price Per Sqft/Year: $14.00
Suite 200
Space Available: 712 SF
Lease Type: NNN
Price Per Sqft/Year: $14.00
Suite 201
Space Available: 1000 SF
Lease Type: NNN
Price Per Sqft/Year: $12.00
Suite 202
Space Available: 710 SF
Lease Type: NNN
Price Per Sqft/Year: $19.00
Suite 209
Space Available: 2484 SF
Lease Type: NNN
Price Per Sqft/Year: $12.00
Suite 210
Space Available: 480 SF
Lease Type: NNN
Price Per Sqft/Year: $19.00
Suite 230
Space Available: 1881 SF
Lease Type: NNN
Price Per Sqft/Year: $8.00
Suite 235
Space Available: 2626 SF
Lease Type: NNN
Price Per Sqft/Year: $8.00
Suite 240
Space Available: 1875 SF
Lease Type: NNN
Price Per Sqft/Year: $8.00
Suite 250
Space Available: 1050 SF
Lease Type: NNN
Price Per Sqft/Year: $8.00
Suite 300
Space Available: 3750 SF
Lease Type: NNN
Price Per Sqft/Year: $20.00

