MULTI-TENANT INDUSTRIAL/FLEX BUILDING FOR SALE & LEASE
14500 Martin Dr
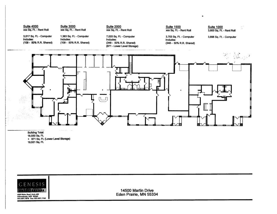
Eden Prairie, MN 55344
Highlights
Description
Situated in the heart of Eden Prairie’s business corridor, 14500 Martin Dr. offers a flexible industrial environment designed to accommodate a range of operations. The property spans 19,521 SF across a single, well-maintained building on a 2.44-acre site, with modern infrastructure and convenient amenities for tenants and visitors alike.
The building’s I-2 zoning supports a wide variety of uses, from light manufacturing to warehousing and creative production. Tenants benefit from a clear height of over 13 feet, four drive-in doors, and a wet sprinkler system for safety. Recent capital upgrades, including a 2019 roof replacement and a 2021 parking lot renovation, ensure the property remains efficient and attractive for years to come.
Its strategic location provides immediate access to Highways 212, 5, and I-494, connecting businesses to the greater Twin Cities metro. Whether for owner-occupancy or as a stable, income-producing investment, this property offers a rare combination of flexibility, location, and long-term value.
Eden Prairie, Minnesota – Consistently ranked among the best places to live in the U.S., Eden Prairie combines a thriving business community with scenic parks, top-rated schools, and vibrant shopping and dining. Conveniently located southwest of Minneapolis, it offers excellent quality of life, strong property values, and easy access to major highways and the MSP airport.

