Mobile Vending Retail Space for Lease or BUILD TO SUIT
4024 E Guadalupe Rd
Gilbert, AZ 85234
Description
MOBILE VENDING SPACE OR BUILD TO SUIT - General Retail or Quick Service Concept in this 100% occupied neighborhood center in the corner intersection of Guadalupe Road & Recker Road. We have a coffee shop already in the complex, but there are no exclusions on anything. A food concept will have no competition(other than the neighboring coffee shop) in a one-mile radius and 4,800 households all to themselves! Join other tenants that provide Dental, a Pilates studio gym, Jewelry, and a Children's Lego store.
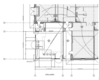
With a mobile vending setup you can set up in the vacant hard corner space so you have great road visibility as well as some parking lot area signs to let people know you are open; this patio use option would be considered for $1,000/month. Or you can build a structure if desired. The current architectural site plan has 928 SF of interior space with 370 SF of outdoor patio space. The proposed project is PERMIT READY, with Design Review Board Approval from the City of Gilbert. Buildout and TIs are negotiable. For any small business owner (non national tenant) you will need to apply and qualify for an SBA Loan or other conventional construction loan to build the improvements (the building) and then you will receive free rent until the building is paid off for - essentially your monthly rent payments go towards paying the loan principal and interest off of the construction loan first. You need to believe in yourself and your business as the landlord is not going to take this risk for a small business owner.
Now is the time to step forward if interested in this fantastic small retail opportunity with great visibility from the street traffic. New or expanding businesses will be considered. National, Regional, or Local companies are all welcome to put forth an application and business plan to be considered.
Gilbert’s Office of Economic Development’s dedication includes a commitment to attract, grow, and retain business and industry in the Gilbert community. The Town of Gilbert’s leadership is focused on a long-term vision for their future, which includes investments in land acquisition, creating a pro-business environment, and creating modernized infrastructure — roads, sewer, and water systems. By 2021, Gilbert’s job market increased by 3.3% over the course of a year. By the close of 2022, Gilbert is expected to see the job market rise due to its lucrative economy and steady population growth of 1.6% annually.
Once known as the “hay shipping capital of the world,” Gilbert now thrives as a prosperous community among the top-ranked places in the country to call home. With 60+ colleges, universities, and technical schools within a 30-minute commute, Gilbert holds one of the highest concentrations of graduate and professional degrees in the Western United States. Gilbert’s city limits boast two higher education institutions: Park University (Park U) and the University of Arizona (UA). Both are located near Arizona State University’s Polytechnic campus and Chandler-Gilbert Community College. Park U offers 130+ degree and certifications and UA offers a bachelor of science in nursing, both conveniently located in Gilbert’s vibrant Heritage District- which is just 7 minutes from the subject property (2.8 miles).
Gilbert’s strategy paid off, as the town is booming with new housing developments, bustling retail marketplaces, and top private employers moving in, such as GoDaddy and Deloitte, to name a few. Isagenix relocated its world headquarters to Gilbert and Deloitte opened a 200,000-square-foot U.S. Delivery Center in Gilbert which created more than 2,500 jobs. These are just two examples highlighting the town’s attractiveness for incoming, notable companies. In 2019, Gilbert was awarded the Best City for Business in Arizona by the Arizona Chamber of Commerce and Industry, due to its commitment to supporting local businesses, driving economic development, reducing regulatory burdens on businesses, and working with the business community.
Documents
H-Land Center Build to Suit Retail Space OMUnits for Lease
Price Per Sqft/Year: $29.00 - $36.00

