Medical/General Office Space Located off Shaw Avenue in Clovis, CA
290 West Shaw Avenue
Clovis, CA 93612
Highlights
- (2) Like New Medical/General Office Spaces off Shaw Ave
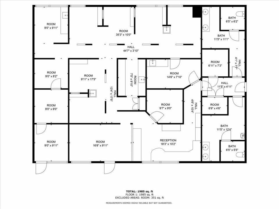
- ±1,985 SF of Medical Office (Former Dentist) & ±1,538 SF General Office
- Move-In Ready | Economical Spaces | Shaw Avenue Presence
- Prime Medical Office Space Just ±5 Miles From Hospital
- Well-Known Freestanding Office Building + On Site & Street Parking
- Energy Efficient Improvements - Low Cost Bulk Rate Utilities
- Convenient Location Between Hwy 168, CA-41, CA-99 & Hwy 180
- Centrally Located w/ Close Access to the Entire City
- Street Signage, Private Entrances/Restrooms, Secure Parking
- Secure, Private, Established Location w/ Quality Tenant Mix
- Great Access & Visibility w/ Unmatched Level of Consumer Traffic
- Highly Visible Intersection w/ Ample Parking & Easy Access
- Great Exposure from CA-168, Shaw and Clovis Avenues
Description
Prime medical/general office spaces near Sierra Vista Mall & CA-168 in Clovis, CA. (2) spaces totaling ±3,523 SF on 2.38 Acres with 4/1,000 parking spaces. Unit #290 of ±1,538 SF is general office and consists of (5) private offices, large conference room, kitchen area, reception/waiting, & private restroom. Unit #290 B-C of ±1,985 SF is medical office (former dentist) and consists of (6) private offices, (4) cleaning station areas, reception/waiting, scheduling/lab station & (2) private restrooms. The subject property offers a central location for doctors, patients, & employees. It is conveniently located just 5 miles south of Clovis Community Medical Center & offers quick access to CA-99/41/180/168 on/off ramps. Near several restaurants, all necessary services and shopping centers, including Sierra Vista Mall.
Property is well located off CA-168 off of the Shaw Avenue exit. Subject property benefits from the influence of proven retailers and its ease of access to Shaw Ave, CA-168, the Clovis community and surrounding trade area. Sierra Vista Mall located across the street ensures Shaw Avenue as Clovis’ regional retail corridor, anchored by Target, Kohls, and Sierra Vista 16 Luxury Cinema including Bath & Body Works, Game Stop, Famous Footwear, and more.
Documents
290 West Shaw Avenue, Clovis, CA 93612 FlyerUnits for Lease
Price Per Sqft/Month: $1.75
Price Per Sqft/Month: $1.75

