Logans Run at Harlingen Industrial Estates II
5001 Logans Run
Harlingen, TX 78550
Highlights
- Freestanding Industrial Warehouse
- 14" Ceiling Height
- Concrete Drive
- Two (2) Grade Level Doors - 12' x 12'
- New Construction
Description
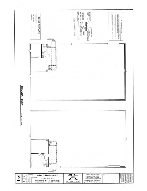
+/- 1.77 Acre Newly Sub-divided Industrial Lot available with two (2) 6,000 sf Warehouses with Shared access on Lot 9 - Block 1 for Lease. +/- 6,000 sf Warehouses with +/- 570 sf office and 5,430 Warehouse. Warehouse Dimensions are 60 x 100, 14" Ceiling Height and Two (2) 12' x 12' Grade Level Doors. Ingress/Egress from Bob Youker and FM 106 and located in the Harlingen Industrial Park - Phase II. Approximate Lot Dimensions 192' x 460'. Seller is a General Contractor and can Build-to-Suit to your business requirements. Water/Sewer/Trash/Mowing Included.
+/- 1.77 Acre Newly Sub-divided Industrial Lot available with two (2) 6,000 sf Warehouses with Shared access on Lot 9 - Block 1 for Lease. +/- 6,000 sf Warehouses with +/- 570 sf office and 5,430 Warehouse. Warehouse Dimensions are 60 x 100, 14" Ceiling Height and Two (2) 12' x 12' Grade Level Doors. Ingress/Egress from Bob Youker and FM 106 and located in the Harlingen Industrial Park - Phase II. Approximate Lot Dimensions 192' x 460'. Seller is a General Contractor and can Build-to-Suit to your business requirements. Water/Sewer/Trash/Mowing Included.
Documents
Lease BrochureUnits for Lease
Price Per Sqft/Year: $6.57
Price Per Sqft/Year: $6.57

