Individual Private Offices Available River North
401 W Superior St
Chicago, IL 60654
Highlights
- Full Floor Opportunity with Rooftop Deck
- Professional Loft Offices in Shared Office Suite | Luxury Finishes
- High Ceiling Heights | Elevator | Exposed Brick
- Nearby Parking Available | Property Manager on site
- Near Chicago Brown/Purple Line Stop & Kennedy Expressway
Description
SVN Chicago Commercial is pleased to present 401 W. Superior Street, a 5-story multi-tenant executive office building located in River North at the signalized southwest corner of Superior and Sedgwick in Chicago, Illinois. Full floor and individual professional office opportunities. Join KAI Volatility Advisors, Three Zero Three Capital Partners, ARB Trading Group, WJW Architects, and Rival Systems. Street parking or parking structure steps away.
Discover the vibrant energy of River North, Chicago's premier neighborhood for Office and Creative/Loft spaces. Located steps away from renowned restaurants, art galleries, and boutique shops, the area provides a dynamic setting for work and play. With easy access to the Chicago Brown/Purple line "el" stop as well as I-90 via Ontario, the location offers unparalleled convenience for commuters.
Documents
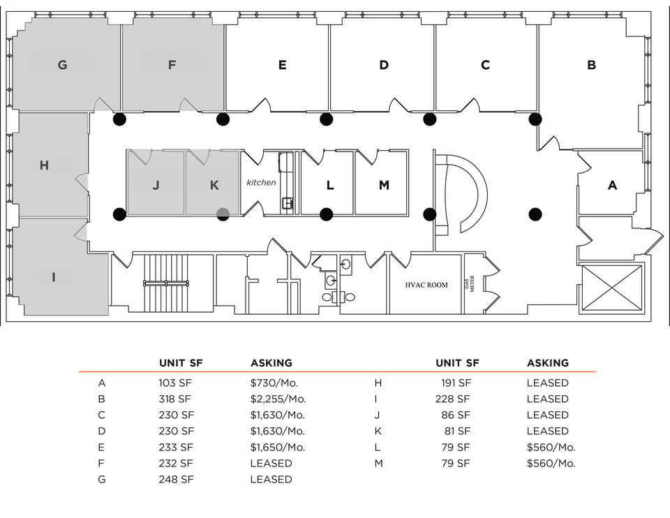
SVN - Lease Brochure 2026Units for Lease
Price Per Sqft/Month: $730.00
Price Per Sqft/Year: $30.00
Price Per Sqft/Month: $2255.00
Price Per Sqft/Month: $1630.00
Price Per Sqft/Month: $1630.00
Price Per Sqft/Month: $1650.00
Price Per Sqft/Month: $560.00
Price Per Sqft/Month: $560.00

