High End Mixed Use Property in Chevy Chase
451 South Ashland Avenue
Lexington, KY 40502
Highlights
Description
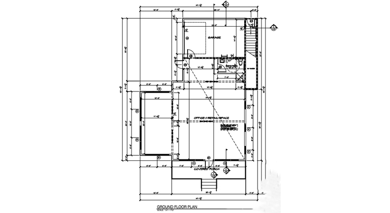
SVN Stone Commercial Real Estate is pleased to present a one-of-a-kind 2,622 SF mixed use property in the heart of Lexington’s historic Chevy Chase business district.
This turnkey opportunity provides your business/office a visible corner lot with high-end modern finishes. Behind the massive windows overlooking the neighborhoods and business district, you’ll find a private office, restroom, temperature-controlled garage, and a sunlit showroom and retail space that walks out onto a porch. The street level space has a private parking lot and is accessed by front and side door.
Upstairs you’ll find a 913 SF residence or investment unit perfect for living, renting, or Airbnb. Spacious rooms and great view, with new appliances. Owner-occupant can live above their business or rent to create an income stream above their business. Based on zoning, whole property can be used as business/retail if need be.
Please contact Justin Ryder at 859-447-3285 or Justin.Ryder@SVN.com to set up a private tour.
SVN Stone Commercial Real Estate is pleased to present 702 SF for lease......
This turnkey opportunity provides your business a corner lot in historic Chevy Chase with high-end modern finishes.....
Lexington's Chevy Chase neighborhood is a thriving example of an early 20th century urban and inner suburban, mixed use neighborhood noted for its convenient location, pedestrian friendly tree-lined streets, excellent residential architecture, parks, shopping and schools. This very desirable area is often sought after by residents who appreciate older homes and easy access to the heart of Lexington, where they can find restaurants, shopping, groceries, and cultural events - all within walking distance. Area demographics are very desirable with well above average home prices.
Documents
SVN Property Brochure.pdfUnits for Lease
Price Per Sqft/Month: $2000.00

