Deland Stand Alone Property- 4,248 SF
105 W Calvin St
Deland, FL 32720
FOR SALE
Property Type:
Single Tenant OfficeAmount:
$637,200
Last Verified:
Sep 23, 2025Daily Email Blast
0 times
Description
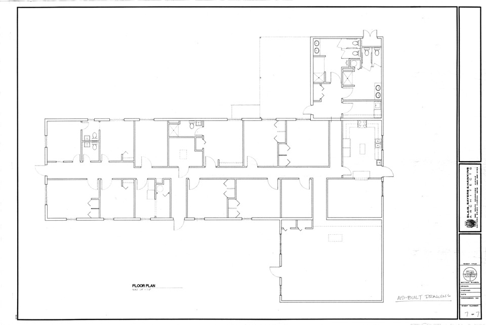
4,248 SF Stand Alone Building in Deland, FL
C-2 General Commercial Zoning(See Use Schedule)
Large Reception / Waiting Area
Former Group Home With Large Bathrooms/Showers
12 Private Rooms - 2 With Private Bathrooms
Medical/General Office, Labs, Vet Clinic, Day Care, Retail Sales, Boarding House
Seller to Vacate by 12/01/2025. Will Consider Short Term Leaseback
21 17 30 W 1/2 OF LOT 8 & ALL OF LOTS 9 & 10 & E 1/2 OF LOT
11 BLK A S BLVD HOMESITES PER OR 1754 PG 665 PER OR 2762 PG
1012
Year Built: 1974
Building Size: 4248sq ft
Building Class: C
Lot Size: 0.5 acres
Documents
105 W Calvin, Deland - Brochure (L)Volusia-County-Real-Estate-702111010090-2024-Annual-bill - Calvin Street.pdf
Volusia County Property Appraiser_s Office - Calvin Street.pdf
Calvin Floor Plan.pdf
Visio - 105 W Calvin Street Deland - Deland Outpatient.pdf
C-2 Deland Zoning.pdf
C-2 Deland Zoning Use Schedule.pdf

