Dakota Dunes Corporate Campus
800 Stevens Port Drive
Dakota Dunes, SD 57049
Description
Stunning corporate campus one mile from the Sioux City, Iowa border in the land of no personal or corporate income tax. Originally built as the world headquarters for a Global 500 company, this prairie-style architecture masterpiece carefully blends into its environment of grand old oak trees here long before Lewis & Clark paddled through. The campus is nestled between a scenic pond and the 132-year old Two Rivers Golf Club with the Loess Hills of Iowa as its backdrop. The Dakota Dunes Covenants are actively enforced to protect its environment and preserve its value.
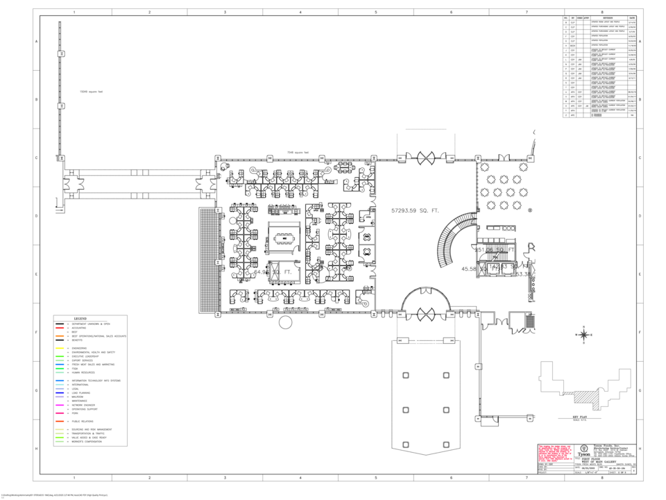
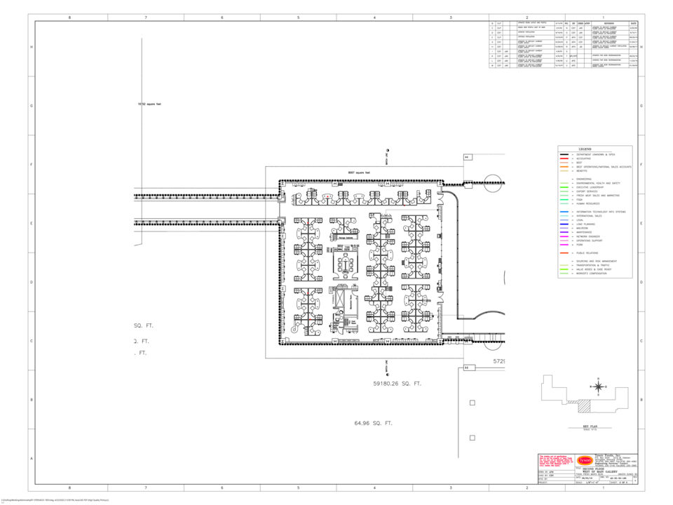
Buildings: The 216,618 square feet (SF) steel and masonry campus consists of two buildings connected by a 3-story breezeway on 47 acres, including 9.73 acres of excess land for expansion. The building was designed with an open concept, except for the executive offices on the 3rd floor. The general office areas on the 1st, 2nd and 3rd floors are 131,000 SF, the executive offices on 3rd floor are 7,000 SF and the lower level finished spaces are 16,000 SF. 32,000 SF are leased by two tenants, Vizio and Connection. The building layout flexibility is conducive to leasing to third parties.
Amenities: The main floor includes a beautiful atrium with an open staircase, a full-service cafeteria & 250-seat dining room, two private dining rooms and a large, expandable 100-seat multi-purpose room with dividers. The 3rd floor C-suite has a private rooftop balcony overlooking the pond and golf course. The lower level features an underground parking garage with 12 private spaces and a research & development auditorium with tiered seating. Outdoor amenities include a pond overlook, extensive outdoor courtyard with many sculptures and walking paths circling the pond. The expansion land bordering the Big Sioux River offers countless development opportunities.
Infrastructure: The ceiling heights are 9'6" and the metal roof deck has a 45 EPDM membrane with concrete tile shingles. Heat is provided by radiant hot water supplied by two low pressure boilers. The campus is fully sprinkled with a 4" wet system, fire alarm system, severe weather and building alarm systems, keyed access and cameras.
Just off I-29 SD Exit 1 in Dakota Dunes Corporate Campus

