Commercial Building with Optional Sale Leaseback
555 Cortland Rd
Groton, NY 13073
Highlights
- Optional Sale lease back
- Groton Low-Cost Municipal Power
- Radiant Heated Floors
- Low-Maintenance Steel Building
- Corner Location
Description
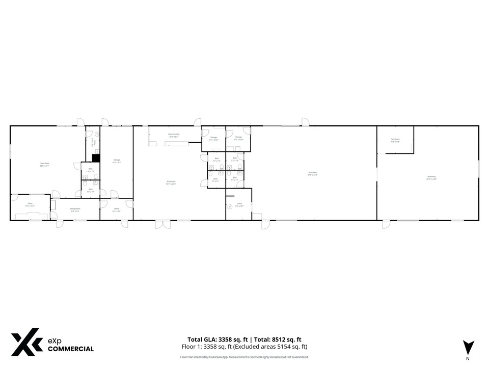
Groton Cycle, located at 555 Cortland Road in Groton, New York, offers an 8,736 SF steel-skin, steel-roof commercial building on 4.37 acres at the corner of Cortland Road and Lick Street. Built in 2005, the property features a showroom, parts area, offices, and service bays, designed for motorcycle sales and repair but adaptable for numerous commercial or light-industrial uses.
The site includes approximately 40 vehicle parking spaces in Front, and a one-acre paved rear road course currently used for motorcycle training and testing. The rear area could be converted to additional parking, outdoor storage, or contractor yard space. The location provides strong visibility and convenient access between Ithaca and Cortland, serving a rural but active trade corridor.
The property is zoned commercial and supports a wide range of potential users, including small manufacturing operations, contractor or trades businesses, landscaping and tree-service companies, small-engine or powersports repair, and outdoor power-equipment dealers. The building layout also lends itself to multi-tenant division if desired.
The seller will consider a sale-leaseback for approximately half of the space, allowing an investor to secure stable rental income while retaining flexibility for additional tenants or an owner-occupant.
Located on the SWC of Cortland Rd and Lick Street in the Village of Groton, NY.
Documents
Groton Cycle BrochureFloor Plan
Zoning GR1261-200c Schedule II.pdf

