Chandler 146
14607 Chandler Road
La Vista, NE 68138
FOR LEASE
Property Type:
WarehouseAmount:
Please Call Broker for PriceLast Verified:
Sep 18, 2025Daily Email Blast
0 times
Highlights
- Ready for Tenant T.I.'s
- 140'4" x 30' bays
- 14' x 14' OH doors
- Floor drains
- 9' x 9' Dock High doors
- $7.00 PSF TI Allowance
- La Vista I-1 Zoning
- 120/208V 3P 200A Panel in each bay
- GFA Unit Heaters
- Agent(s) has equity
Description
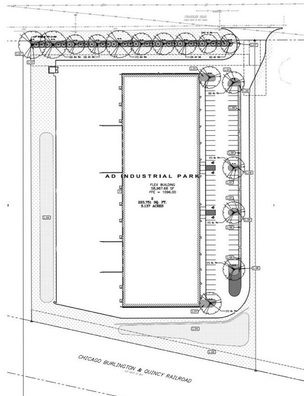
One Bay Left 16,840 SF
Southwest corner of 144th Street (HWY 50) & Chandler Road.
Year Built: 2025
Building Size: 58940sq ft
Lot Size: 5.14 acres
Documents
• NAI - BrochureUnits for Lease
14607 Chandler Road, La Vista, NE 68138
Space Available: 16840 SF
Lease Type: NNN
Price Per Sqft/Year: $9.80

