Birmingham Class A Office
2075 E 14 Mile Rd
Birmingham, MI 48009
Highlights
- Class A Office/Loft/Creative Space
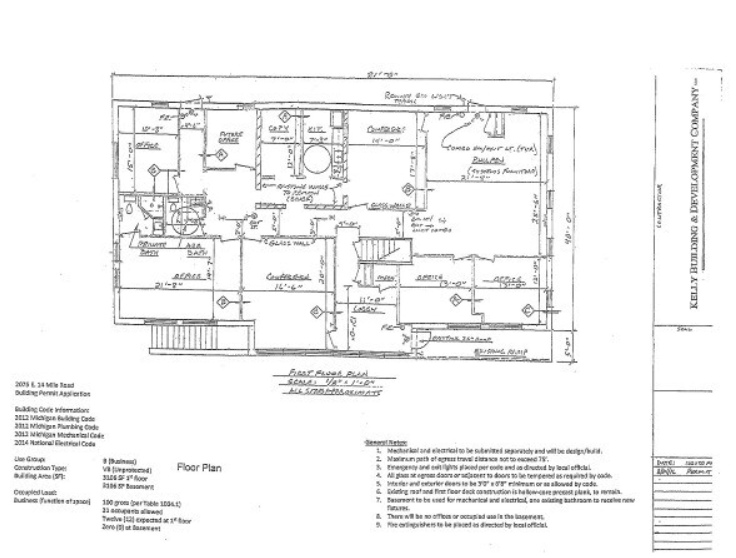
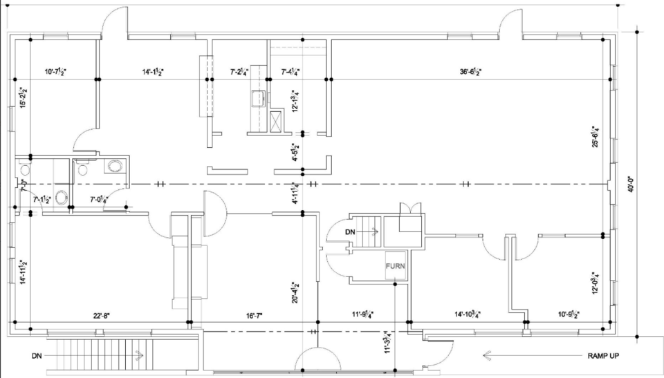
- 6,343 SF (3,353 SF, first floor / 2,990 SF lower level)
- Full basement for additional office space and storage
- Single Tenant / Single Story
- BI - Commercial Business
- 8 Spaces
- 1968 Build / 2020 Renovated
- $30.00 PSF
Description
Located nearby walkable to downtown Birmingham and short drive to Beverly Hills and Bloomfield Hills. Trade area is surrounded by major retail, restaurants /dining and shopping districts. Strategically located between Woodward Ave and Coolidge Hwy.
Full exterior façade renovations completed
Modern buildout
Space is in Excellent Condition
Strong area demographics (Avg HH Income = $197,000)
Located within one of Michigan's most affluent communities
Large daytime population within a 3-mile radius
Discover the vibrant community surrounding the property at 2075 E 14 Mile Rd, Birmingham, MI, 48009. Nestled in the heart of the Birmingham Submarket, this esteemed location offers a plethora of amenities and attractions in close proximity. With a diverse range of dining options, upscale shopping venues, and scenic parks, tenants can experience a perfect blend of work and leisure. Enjoy the convenience of nearby landmarks such as the Somerset Collection, Shain Park, and the Birmingham Historical Museum. The area's dynamic atmosphere and accessibility make it an ideal choice for tenants seeking an enriching and enjoyable work environment.
Documents
2075 E 14 Mile Road - Lease Brochure 2025Units for Lease
Price Per Sqft/Year: $30.00

