Adams on the Plaza- Class A Downtown Office or Retail Space
100 W Main St
Salisbury, MD 21801
Highlights
- Class A office available for occupancy
- Convenient location off of S. Division and Main would be perfect for a conversion to street retail
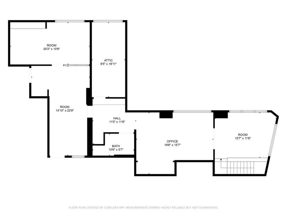
- Can be divided - 2218 SF or 1193 SF
- Elevator to second-floor
- All Furniture Fixtures and Equipment shown in the pictures can remain or be removed.
Description
Welcome to Adam's Plaza! Introducing a premier leasing opportunity for this ground-floor unit located at the corner of Main St & Division St. This exceptional Class A office space offers flexible configurations and up to 3,411 SF of prime real estate. The space can be divided between teh first level and second level with the ground floor level being 2218 SF with lots of natural light and high-end finishes, complemented by a 1,193 SF second level accessible by stairs (if leased together) or elevator. Positioned for optimal visibility and accessibility, this property is ideal for a variety of businesses, including professional office (its current setup) or a potential conversion to street retail. All furniture, fixtures, and equipment showcased in the space can be retained or removed based on tenant preference. Elevate your business presence by located at this "Main & Main" location!
Located in the epicenter of downtown Salisbury, MD
Documents
First Floor Floorplan 6.25.jpgMezzanine Floor Plan 6.25.jpg
SVN - Brochure (L)
Units for Lease
Price Per Sqft/Year: $11.25
Price Per Sqft/Month: $2587.00
Price Per Sqft/Month: $1391.00

