9280 Plainfield Road, Cincinnati, OH, 45236
9280 Plainfield Road
Cincinnati, OH 45236
Highlights
- Rate Reduction
- Blue Ash Retail/Office For Lease
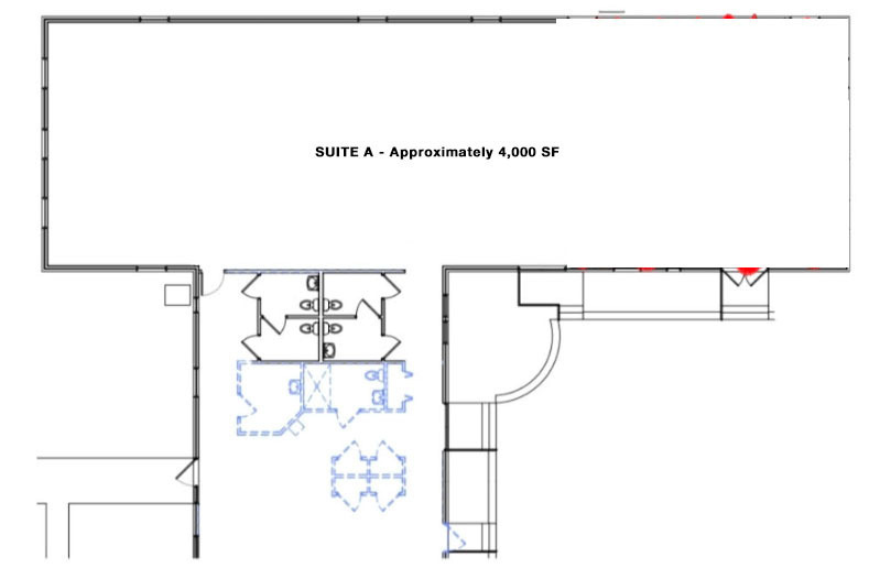
- 5,500 SF Total 2 Contiguous Suites Available
- Suite A 4,000 SF - $12.50 SF/yr MG
- Suite B 1,500 SF - $10.00 SF/yr MG
- Ample Parking
- Customizable Floorplan
Description
With high visibility from Plainfield Road, this prime location provides excellent exposure for your business. The property features ample parking, and customizable floor plans. Whether you're seeking a flagship retail location, contemporary office space, or a vibrant restaurant setting, this property presents a versatile canvas to bring your vision to life. Elevate your business in the heart of Blue Ash and capitalize on the opportunities it presents.
Nestled in the prime location of Blue Ash the surrounding area of the property offers an array of amenities and attractions perfectly suited for a retail or office tenant. With its proximity to notable attractions and developments, such as Summit Park and the Blue Ash Recreation Center, the area provides the ideal blend of convenience and recreation. Nearby dining and retail options add to the allure, making it an attractive location for prospective tenants. The vibrant community and access to renowned educational institutions make this area a desirable destination for your organization.
Documents
9280 Plainfield Road BrochureUnits for Lease
Price Per Sqft/Year: $12.50
Price Per Sqft/Year: $10.00

