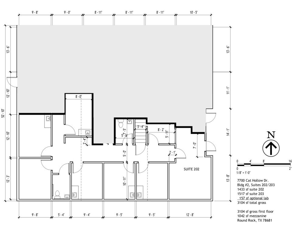
7700 Cat Hollow Drive, Suite #202, Round Rock, TX, 78681
7700 Cat Hollow Drive, Suite #202
Round Rock, TX 78681
Highlights
- 1,587 SF Second Gen Medical Office For Lease
- Located off FM 620 near major traffic corridors
- 7 Private Offices (6 Exam Rooms with sink)
- Reception/Check-In with Waiting Area
- Kitchenette/Breakroom
- Ready for Immediate Move-In
- Ample Parking
Description
Tuscan-inspired second generation medical office for lease in Prime Round Rock location! Ideal for medical or dental professionals, consultants, therapists, med spa, insurance, or other service-based businesses seeking a professional presence in Round Rock's growing corridor. Located just off RM-620 with easy access to major traffic corridors (SH-45, IH-35). Surrounded by established communities like Cat Hollow, Brushy Creek, and Great Oaks. Close proximity to St. David's Medical Center, major medical centers, and top employers. Ample parking. Ready for Immediate Move-In!
Come Join: Pediatric Center of Round Rock, Accent Smiles Dentistry, ATx360 Physicians, Synergy Plastic Surgery and more!
Located off RM-620 near major traffic corridors (SH-45, IH-35). Surrounded by established communities like Cat Hollow, Brushy Creek, and Great Oaks.
Documents
KW • Brochure (P)Units for Lease
Price Per Sqft/Year: $24.00

