380 Dark Indigo Ln, Graniteville, SC, 29829
380 Dark Indigo Ln
Graniteville, SC 29829
Description
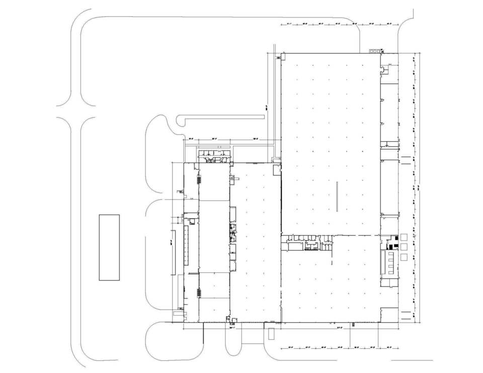
Building Size: Approximately 326,000 square feet and a 10,000 square foot detached mechanicals building
Lot Size: Approximately 30.82 acres
Ceiling Heights: Primarily 19’ - 25’ clear with a 37’ clear in a 15,552 SF
Column Spacing: Primarily 46’ x 38’
Lighting: Primarily LED
Truck Loading West Section: Eleven 9’ x 10’ dock high doors with pit levelers and dock seals & one 10’ x 10’ drive in door
Truck Loading East Section: Six 8’ x 9’ dock high doors with EOD levelers and seals and one 10’ x 10’ dock high door with EOD leveler
Building Size: Approximately 326,000 square feet and a 10,000 square foot detached mechanicals building
Lot Size: Approximately 30.82 acres
Ceiling Heights: Primarily 19’ - 25’ clear with a 37’ clear in a 15,552 SF
Column Spacing: Primarily 46’ x 38’
Lighting: Primarily LED
Truck Loading West Section: Eleven 9’ x 10’ dock high doors with pit levelers and dock seals & one 10’ x 10’ drive in door
Truck Loading East Section: Six 8’ x 9’ dock high doors with EOD levelers and seals and one 10’ x 10’ dock high door with EOD leveler
Property is located 2.2 miles south of Interstate 20 (exit 11).
The Augusta commercial airport is located 20 miles southwest.
Port of Charleston is 151 miles southeast and the Port of Savannah is 139 miles south

