10397-10409 Alder Ave, Bloomington, CA, 92316
10397-10409 Alder Ave
Bloomington, CA 92316
Highlights
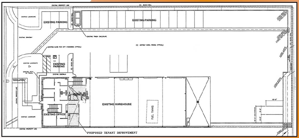
- +/- 8, 250 Sq. Ft. Building with Excess Land (10%) Coverage
- Zoned IC & IR County of San Bernardino
- Large Secure Yard Area with Drive Thru Gates
- Covered Wash Rack with Clarifier
- Fully Insulated Walls and Roof
- 1200 amps - Heavy Three Phase Power
- Electric Sliding Gate
- Sprinklered
Description
Great, newer construction building on +/- 1.85 acres. This building is loaded with many extras. Wired for Security Cameras
Ideal for Contracting, Materials & Transportation Users, Office: +/-3,500 SF – Two Story – With Restrooms on both floors and wet bar. Natural gas to the building.
Located in the heart of the Inland Empire, the area surrounding the property at 10397-10409 Alder Ave, Bloomington, CA, 92316, is a thriving hub for industrial, warehouse, and distribution investors. With close proximity to major transportation arteries, such as the I-10 and I-15 freeways, the area offers seamless connectivity for logistical operations. Nearby points of interest include the Ontario International Airport, the bustling Ontario Mills shopping center, and the expansive March Air Reserve Base. These amenities enhance the desirability of the location for businesses looking to capitalize on the region's robust industrial market and strategic location within Southern California's logistics network.
