1,331 SF Office + 660 SF Storage + 1,400 SF Fenced Yard | 35' Clear | Service Trades | San Antonio
11495 Toepperwein Rd
Live Oak, TX 78233
Highlights
- 1,331 SF office + 660 SF storage (6 units) + 1,400 SF fenced yard | Single lease
- Market rates: Office $18/SF + Storage $10/SF + Yard $1/SF | Lease special reduces effective cost
- 35-foot clear height in warehouse area [VERIFY] | Supports vertical racking or specialty equipment
- 2-Grade-level roll-up doors (14'W × 20'H) + 1-dock-high door | Accommodates box trucks and service vehicles
- Three dedicated front-row parking spaces | Client-accessible, professional appearance
- B-2 General Business zoning | Permits contractor operations, vehicle storage, material staging
- Second-floor office configuration | Professional client meeting space, enhanced security
- Full building option available (10,292 SF total) | Scalability for growing operations
- Recently upgraded: 4-foot stone facade, fresh exterior paint | Professional curb appeal
- 1.5 miles to Loop 1604, 3 miles to I-35 | Service radius covers Northeast San Antonio growth corridor
Description
LEASE SPECIAL: 1 Month Free on 3-Year Term | 3 Months Free on 5-Year Term
TOTAL MONTHLY RENT: $2,663
Lease Special: Effectively $2,589/mo (3-year term) or $2,530/mo (5-year term)
Configuration 1 - Partial Building:
- 1,331 SF office @ $18/SF/year
- 660 SF storage @ $10/SF/year
- 1,400 SF yard @ $1/SF/year
Configuration 2 - Entire Building:
- 3,981 SF office @ $18/SF/year
- 6,310 SF storage @ $10/SF/year
- 18,957 SF yard @ $1/SF/year
PROPERTY CONFIGURATION
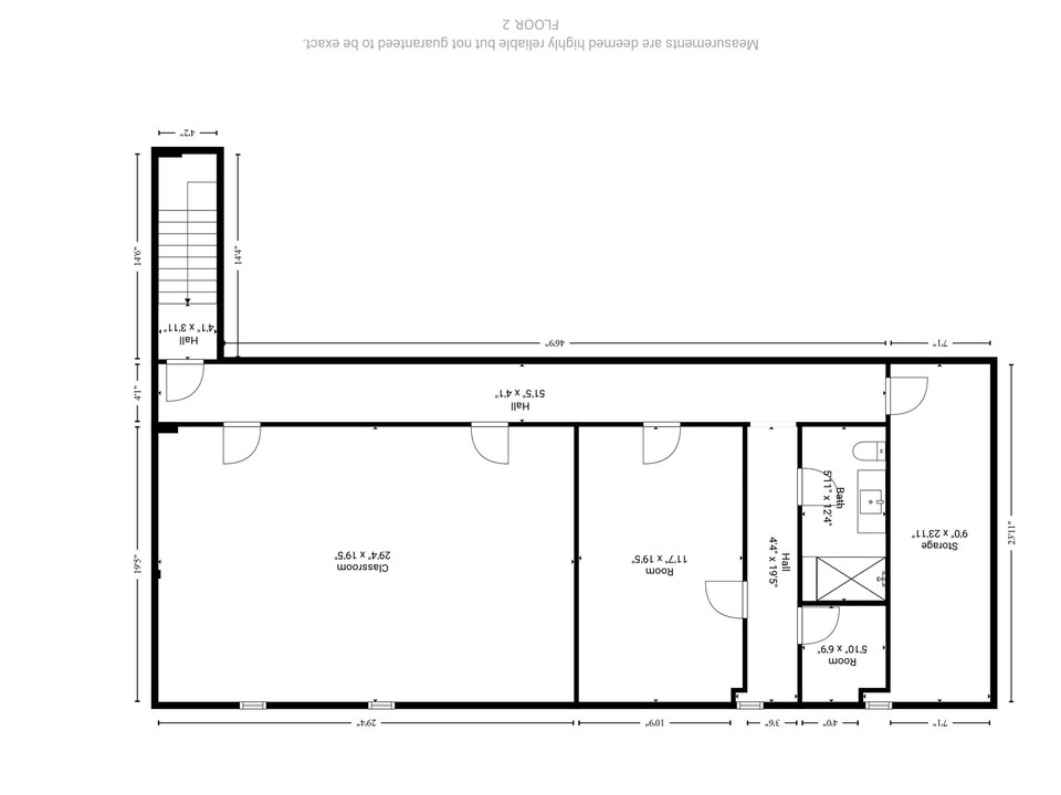
Office/warehouse flex space delivering complete service contractor infrastructure: 1,331 SF second-floor office, 660 SF secured storage (six individual units), 1,400 SF fenced yard, and three dedicated front-row parking spaces. Single lease solves office, inventory storage, and equipment staging requirements without multiple landlords or locations.
Full building available (10,292 SF total) with owner retaining one office and one storage unit. Property recently upgraded with 4-foot stone facade and fresh exterior paint.
WAREHOUSE SPECIFICATIONS
Clear Height: 35 feet
Loading: Two grade-level roll-up door (14'W × 20'H) + one dock-high door
Zoning: B-2 (General Business) - permits service contractor operations
OPERATIONAL ADVANTAGES
Second-floor office provides professional client meeting space while storage units secure tools, parts inventory, and equipment. 2-Grade-level doors accommodates box trucks and service vehicles. The 35-foot clear height supports vertical storage racking or specialty equipment. Fenced yard eliminates off-site storage costs for trailers, vehicles, and bulk materials.
TARGET TENANTS
Purpose-built for plumbing contractors, electrical contractors, HVAC companies, low-voltage/security installers, commercial equipment service, and trades requiring office presentation + secure storage + vehicle/equipment staging.
LEASE STRUCTURE
NNN: ~$1.00 SF
NORTHEAST SAN ANTONIO - B-2 ZONED SERVICE CORRIDOR
11495 Toepperwein Road positions service contractors in San Antonio's established Northeast commercial submarket. B-2 General Business zoning permits contractor operations including vehicle/equipment storage, material staging, and service dispatch.
TRANSPORTATION & SERVICE RADIUS
Loop 1604 (1.5 miles): East-west connector to I-10 and I-35 corridors
I-35 (3 miles): North-south access to Austin metro and South Texas markets
San Antonio International Airport (12 miles): OEM training, vendor relationships, national account service
Service radius covers Northeast San Antonio growth areas: Stone Oak, Olympia Hills, Garden Ridge, and Bulverde corridor. Residential expansion drives consistent service demand.
SUPPLY CHAIN ACCESS
The Forum at Olympia Parkway (2 miles): Lowe's, Home Depot, electrical/plumbing supply
Rolling Oaks commercial district: Ferguson, Johnstone Supply, WESCO
Proximity to trade supplier network reduces procurement time and supports same-day material access
MARKET FUNDAMENTALS
Office market rate: $18/SF | Warehouse market rate: $10/SF | Yard market rate: $1/SF
Northeast submarket industrial vacancy remains below metro average, reflecting sustained demand for service contractor and light industrial space.
Documents
NEW Brochure (P)Units for Lease
Price Per Sqft/Year: $18.00
Price Per Sqft/Year: $10.00 - $18.00

