1,000 sq/ft first floor Office Condo in City of Fairfax
9697 Main St Ste A
Fairfax, VA 22031
Highlights
- 1,000 sq/ft first floor office condo
- Direct walk-in access and visibility from 236 (Main St)
- Signage and abundant parking
- Multi uses include, professional, medical or personal services
Description
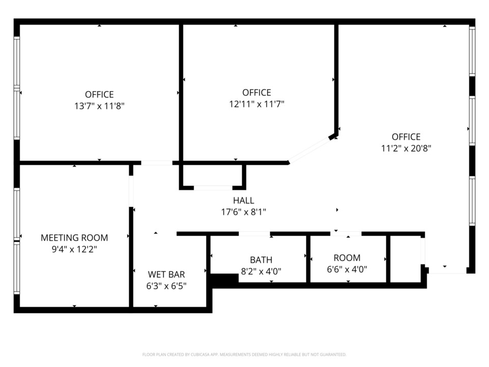
K & M Commercial is pleased to present this exceptional opportunity to own a highly versatile 1,000 square-foot office condominium located in the heart of the City of Fairfax. This first-floor unit offers direct walk-in access and excellent visibility from Route 236 (Main Street), providing strong exposure and convenience for clients and staff alike. The thoughtfully designed layout features: Welcoming reception area, Two private offices, Conference room ideal for meetings or collaborative work, Kitchenette for staff convenience, Private en-suite bathroom.
Zoned to accommodate a variety of professional, medical, and personal service uses, this office condo presents an ideal setting for owner-occupants or investors seeking a flexible and accessible location within a thriving business corridor.
Discover the vibrant allure of Fairfax, VA, where your investment at 9697 Main St Ste A promises a blend of business and pleasure. Situated amidst the city's thriving commercial landscape, this prime location offers easy access to notable attractions such as the bustling Fairfax City Historic District and the rejuvenating Van Dyck Park. With renowned dining options like Main Street Bagel and Coastal Flats just steps away, your future tenants will appreciate the area's lively atmosphere. Beyond work, the nearby Cinema Arts Theatre and Ratcliffe-Allison House provide cultural escapes for employees and visitors alike. Embrace the dynamic potential of this prime location in the heart of Fairfax.

